With around 250 locations and 90 serve centers, we are represented in the most important economic regions of the world. The advantages are clear: short paths to our customers, fast response times and a shared language.
Seal can be applied at higher pressure and rotating speed than specified by DIN
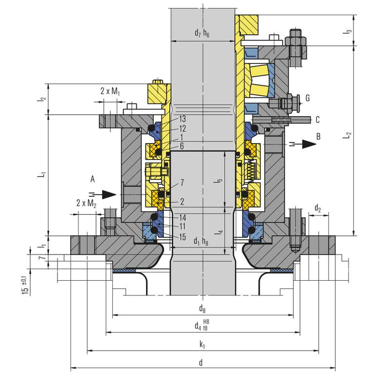
The seal can be lifted off the glass-lined flange as a complete cartridge. The sensitive glass lined basic flange remains mounted on the vessel.
ATEX certification on request
Operating range
Shaft diameter: d1 = 40 ... 160 mm (1.57" ... 6.30")
Pressure: p1 = vacuum ... 16 bar (232 PSI), p3 = max. 18 bar (261 PSI)
Temperature: t1 = -40 °C ... +200 (250*) °C (-40 °F ... +392 (482*) °F)
Sliding velocity: vg = 0 ... 5 m/s (0 ... 16 ft/s)
For applications beyond this range, please inquire.
* with cooling flange
! It should be noted that the extremal values of each
operating parameter cannot be applied at the same time
because of their interaction.
Materials
Seal faces: Carbon graphite or Silicon carbide, FDA conform
Seats: Silicon carbide, FDA conform
Secondary seals and metallic parts acc. to application and customers' requirement.
Standards and approvals
FDA
ATEX
DIN 28138 (mechanical seals for agitator shafts)
DIN 28136 T3 (for glass-lined vessels)
DIN 28137 T2 (flange connection for glass-lined vessels)
M461KL-D
The variant with integrated floating bearing.
M56K(L)
Double seal without/with floating bearing for PN 25 (Special seal on request.)
M491KL
The series for unstepped shafts (all diameters) and connection diamentions not covered by DIN. Customized design or e.g. different drives (torque transmissions) are available.